我想来点装修建议 谢谢

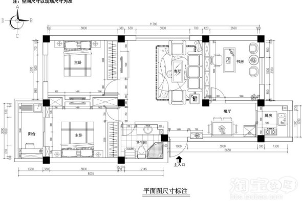
麻烦设计师帮偶瞧瞧。。谢谢,,能怎么充分利用起来。尤其厨房能怎么搞显得舒服点

本帖的助威记录:助威总计 0 点 | 查看全部记录>>

坐着等经验人士

沙 发

垫子


采用开放式的厨房

哇 好大的房子 ,恭喜了. 我建议装修为田园风格的. 超时代感的那种设计已经太多有点腻了. 装修好以后要有好的点缀才更 锦上添花啊. 向你推荐宝贝一款,希望能对你有帮助. 若觉的是广告就可不必理睬.

太大了,看着就头晕。

最新评论

发表评论

为“我想来点装修建议 谢谢”说几句吧

评论内容:发表评论不能请不要超过250字;发表评论请自觉遵守互联网相关政策法规。

热卖商品

    Copyright © 2009-2024 yr.pinnace.cn All Rights Reserved. 17育儿网 版权所有

    粤ICP备11040004号-1