先来一张封面图,感谢加精!!!^_^
帖子已经到了25页了, 我怀揣着无比激动的心情,我决定了!!!!
我决定把我装修时的照片跟大家一起分享。。。
最终效果图,第一楼
装修前图片,第二楼
装修过程中,第三楼
为此,小女特地在今天早上为大家拍摄了多张图片,以此感谢广大热心的淘友。。。
我的相机没有电了,用了我的N97拍的,效果肯定没有相机的好,大家讲究看吧,图片是夹杂在之前的图片里面的。大家仔细看哦。。。^_^
【户主】:Nissanellie
【户型】:一室一厅
【面积】:37.6平米
【来自小区】:上海香山新村
【风格】:田园,可爱
【适合居住人群】:80后小夫妻
【开工时间】:2010年1月15日
【合同完工时间】:2010年3月28日(实际是4月25日)
【全部花费】:6.5万(包括所有家电,家具)
菠萝片是用来吸甲醛的,来自菜场
在上海,买房不容易。
对80后的年轻人来说, 装修更加不容易。尤其象我们这样,双方父母都够不着边的人来说。那就更加辛苦了。
过程辛苦,结果还是开心的。
第一次在社区发帖, 多多关照哦。。。
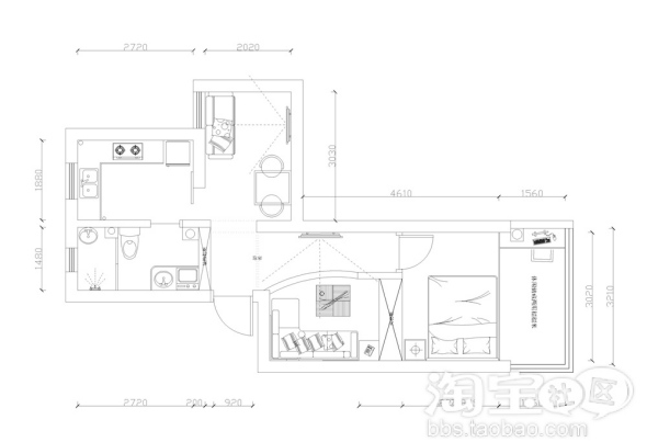
为了让大家更好的了解我的房屋结构, 先看下房型图吧。。一室一厅的房子, 我把阳台也包进去了。?我家的设计师就帮我画了这张图,之后就消失在茫茫人海中了。
最后的结果跟这个图是有区别的, 但是大体是这样分割的:
原本的一个大房间被分割成为一个客厅和一个房间,阳台部分是榻榻米
客厅一角:
假窗:68块 http://item.taobao.com/item.htm?id=1528755893 (买贵了,而且有瑕疵,老板看也不看就发货的)
绢花:12块 http://item.taobao.com/item.htm?id=3626175887
收纳格:9.9块 http://item.taobao.com/item.htm?id=3458804376
电话(Panasonic):280块 ?http://item.taobao.com/item.htm?id=3607562715(现在有VIP优惠了, 便宜了)
储物凳:90块连运费 http://item.taobao.com/item.htm?id=1810995173
都是来自淘宝
小方桌来自宜家,因为下面的高度不够放储物凳,所以我就用硬板纸加高了, 自己做了个脚套。
hello kitty灯原本的收藏
王老吉来自超市
客厅的另外一面
37寸创维电视来自360buy 3899块,K10系列
墙壁贴花:http://item.taobao.com/item.htm?id=4395810169
电视柜:http://item.taobao.com/item.htm?id=2295531937
来自淘宝
转个镜头
你看到的鞋柜是原来的卫生间门,现在被我们拆了做了鞋柜和储物柜,现在的卫生间门在厨房里面,没有办法,房子小。。。
现在你看到的地板也是来自淘宝。不过是我遇到的最不开心的卖家,绝对的不建议。。
电视柜:260块
今天早上加图:
客厅全貌:
沙发来自淘宝:2100块(真的非常好,无比推荐)
http://item.taobao.com/item.htm?id=4435604995
门口看客厅和房间:
强烈推荐,是我淘宝装修最满意的产品:我的无比美貌的吊灯。。
http://item.taobao.com/item.htm?id=4237242446
早上是阴天,不要要求太高了。。铁艺的灯,黑色的。
小茶几:淘宝来的128块,非常的方便。就是适合我这样的小家,上面可以放茶杯,下面放零食。O-yah~~http://item.taobao.com/item.htm?id=2664657125
客厅的最后更新:
一个是芭比娃娃,我妈妈送我的。
另外一个芭比娃娃,我老公送的。
戳便便的,我老公的同学送的。
穿衣服的小熊,特立屋买的。
客厅和卧室有一道篱笆门隔断,现在我们来推开篱笆门,看看卧室。。。
梳妆台:305块
卧室里面看出来, 2盆花,一盆是真的,一盆是假的。
下面是个梳妆台,http://item.taobao.com/item.htm?id=4646686505
来自淘宝
榻榻米的一边是我的书房一角。我不爱看书。?
卧室一角:
床:700块带运费 http://item.taobao.com/item.htm?id=4465656909
电话(跟小厅里的是字母机来的),
床头柜:175块 来自淘宝 http://item.taobao.com/item.htm?id=2732510219
台灯,相框是朋友送的, 里面有我跟老公的照片。。
闹钟是以前自己开淘宝店的尾货
转出来,看门口玄关
双面田园钟:88块
铁艺灯:一共有1个三头吊灯,一个5头吊灯,1个3头吸顶灯,3个单头的吸顶灯。一共480块,另外加上17个节能灯泡170块。
都来自淘宝。值得一说的是我的这些铁艺灯,非常的好,几乎来一个夸一个。。。
鞋柜一角
地上的地毯:21块 http://item.taobao.com/item.htm?id=2822872783
也是淘宝来的。
小厅一角
小厅的沙发床:送货到家950块(好,推荐)http://item.taobao.com/item.htm?id=3259549582
墙壁的小挂饰:35块一个(推荐)均来自淘宝 http://item.taobao.com/item.htm?id=2576605863
小厅一角:沙发床的位置往门口看。
防盗大门:800块(推荐)
门口垫子:20块 http://item.taobao.com/item.htm?id=3422666836
灯:说过了
双面铁艺钟:88块 http://item.taobao.com/item.htm?id=4464921981
电表遮挡箱:68块
绢花+花瓶:16+28=44 http://item.taobao.com/item.htm?id=4047341425
小柜子:95块
吃饭桌:定做300块
椅子:2个靠背的+1个方凳=260块(包括运费)
垃圾桶:7块
都是淘宝来的。
桌布,我自己做的。
小厅特写:
不看,不说,不听:11.7块来自淘宝
http://item.taobao.com/item.htm?id=5021850891
蜡烛罩,来自宜家
小厅另一面:
白板来自超市
门口看小厅
小厅看厨房:
冰箱(伊莱克斯):1580块 http://item.taobao.com/item.htm?id=3137326814
冰箱贴:3块 http://item.taobao.com/item.htm?id=2442411457
油烟机+煤气灶(美的):1048块 (那店最近断货了)
水槽:299块
橱柜:包括卫生间的一个上柜和下柜还有拉篮:5000块
灰机猫和其他墙贴:105块 http://item.taobao.com/item.htm?id=4281780209
都来自淘宝。
更新图片:打开门进去看看;
小半帘是我自己做的,挂杆是淘宝上的12块一根,卫生间也有一根挂浴帘的。
厨房看出去:
冰箱,冰箱架子:29.9块来自淘宝 http://item.taobao.com/item.htm?id=4551527472
微波炉来自超市
淘来的冰箱
打开卫生间的门:
锁:55块 http://item.taobao.com/item.htm?id=2982312245
洗衣机(伊莱克斯):2780块(带烘干的哦)
http://item.taobao.com/item.htm?id=4459530020
来自淘宝。
卫生间门被打开了。。。
水龙头:2个冷水的,一个台盆的,一个洗澡的,都是九牧的807块
台盆架来自淘宝。。。
台盆,本地商家。。
镜子。。来自百安居。。没有办法的情况下去买的,
继续。。
继续:
马桶,瓷砖:来自红星美凯龙
多一个镜头。。。
继续更新
浴室挂件:
http://item.taobao.com/item.htm?id=3754622457
均来自淘宝。。。价廉物美
图中的小人来自淘宝,28块一对
[最后更新时间为 2010-06-21 09:02]
本帖的助威记录:助威总计 41 点 | 查看全部记录>>没有装修前。。。图片有些夸张。。建议在吃饭的同学暂时可以跳过。。
小厅往门口看。。。
小厅看厨房。。。
门口看房间。。
原本的大房间, 现在就是被我隔开了。
就这些吧, 更加恶心的我就不放了。。。
[最后更新时间为 2010-06-17 20:09]
装修中。。。这套照片是在水电交工的时候拍的。。。
现在的小厅位置
厨房那个墙壁
继续厨房,看看我的那个可怜的上家吧,把房子折腾成什么样子了。。。
[最后更新时间为 2010-06-18 17:01]
很不错的家哦,小得太漂亮了,真不错,灯光太漂亮了,好清新的味道哦!
喜欢 顶好漂亮的墙贴,那个花花简单大方,看起来很舒适我也准备在TB
夏天看起好凉爽
装修不错。太漂亮了我怎么没这么厉害强顶贴,赚积分
有房子真好哦~~
有房子真好哦~~
有房子真好哦~~
有房子真好哦~~支持一下 评论内容:发表评论不能请不要超过250字;发表评论请自觉遵守互联网相关政策法规。