【户主】:hpapple19791011
【户型】:两室两厅两卫、LOFT(20平米)
【面积】:110平方
【来自小区】: 北京 富燕新村三区
【风格】:简约风格,装修之后觉得有点混搭
【适合居住人群】:三口之家(目前还是二人世界哦)
【开工时间】:2010年2月28日
【合同完工时间】:2010年5月1日
【预算】:轻工辅料2.5万 ~(主材自理)
入住时间: 2010年6月14日
都说装修是个大工程,初出茅庐不怕虎的我勇敢的闯入了装修大战中,天天埋头苦读淘宝上的居家帖子,从家装日记中学习装修注意事项,开始了自己的梦幻之旅。
最初,我对田园风格情有独钟,但是随着学习的深入,我发现田园风格是很温馨,但是容易引起“善变”的我的审美疲劳,最终选择了简约风格作为新房的主调。而且,有个色彩的房子是我的梦想,我异常兴奋的开始了我的探索。
我们小区是单位的房子,作为“双外”大学生,我十分幸运的分到了一套建筑面积94平米的六层,房间最高挑高5米,是做LOFT的首选,见到样板间的第一眼,我就喜欢上了,坚决要个小复式。
选择装修公司是一个矛盾而痛苦的过程,我一直担心做阁楼的安全性,这是首要的,因此,我问了我们这里的比较大的装修公司“绿梧桐”,他不仅报价贵,而且还不给做阁楼,于是我想到了小区的一个样板间,就是那个在小区里第一个装阁楼的装修公司。联系了一下,他还算有诚意,我们谈好价钱之后就开始着手装修了。在这里我要提醒即将开始装修的朋友们,在装修前一定要把装修合同写好,用的材料和方法都要写的明明白白,而且规定他不许有乱加钱的现象。因为这个装修公司也算是通过认识的人介绍,所以基于信任,当时合同就没写那么细,所以在施工过程中我们就在和他们做坚决而努力的斗争。
我们家订了一个主调,那就是装修的事老公随我,他一切OK
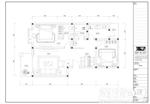
户型图先上:

设计方案是:

方案二

先来张我们新拿到钥匙的一刻吧。

这是老公第一个冲在前面开门的情形。
房子主客厅

主卫,次卫和主卫大小一样,结构一样,所以就没发图片。

厨房

厨房小阳台

小卧室

小卧室门口看客厅,刚开始还是感觉比较大的,但是随着装修的进行,家具进入后,家也开始慢慢变小了。

主卧室:左边是主卫

看我们的房子挑高有5米,

这些基本上就是我装修前最完整的照片了,还是在我的坚持下留下的纪念呢。现在就开始发装修过程中的照片了:
改水改电是个比较大的工程,本以为已经做好功课的我,直到入住时才发现想的那么周到还是有遗漏,装修是个遗憾工程这句老话可都是前辈们吃了亏之后总结出来的,真的很准哦。
小卧室改电图:

客厅改电图:

阁楼是用钢筋和大芯板为主材,主梁是工字钢,还有槽钢】角钢】和方钢搭成的,因为那几天老公出差带走了相机,因此没有留下图片,只有做好的阁楼图片了

明天继续发。。。。。。
今天早上一来就发现我的帖子被加精了,真是很兴奋啊!!我会加油发图片的

发点装修好的

换个角度

因为没有做电视墙,所以买了电视柜

忽略电脑,当时还没有入住,
楼梯

看看厨房






客卫



九牧的花洒,法恩莎的马桶
主卫



[最后更新时间为 2010-07-14 22:37]
本帖的助威记录:助威总计 7 点 | 查看全部记录>>支持下!期待更新哟..精华鼓励 .不错啊,顶啊。九万块,110平方,不少了呀。期待装修后的特写。~

评论内容:发表评论不能请不要超过250字;发表评论请自觉遵守互联网相关政策法规。