先上几张小区环境图及未装修前照片给各位淘友看看:
下面这张是房子正面图:
这张是主卧室及飘窗:
以下是衣帽间:
以下是次卧及飘窗:
这张是客厅及餐厅:
下面这张是卫生间:
下面这张是书房:
这张是工作室:
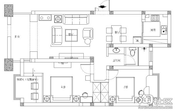
以下是装修设计图:
一楼的设计图:
地下一层设计图纸:
[最后更新时间为 2010-05-26 22:20]
本帖的助威记录:助威总计 0 点 | 查看全部记录>>有米人!沙发啦!

好期待,加油哦。我有10年的装修行业经验 要是装修的过程中有什么不明白的 遇到什么问题 我可以帮你
今天凌晨发的贴子,早上起来发现有提醒成为精华贴了,很是惊喜,感谢三位淘友对我的支持。说到这个装修,我完全是两眼一抹黑,门外汉,除了本身自己是做地板,对这些懂点外,其他全都不懂,不过地板是最后才要考虑的事情。
我们是五月份定好的房子是现房,钥匙也早就拿到了,一是忙于店铺生意,二是当地熟人很少,平时父母也不在身边,跑装修的事基本上是完全靠自己的。前期跑了好几个装修公司,总算把装修布局给确定了下来,装修布局还是我们自己画PHOTOSHOP 画好,然后再交给装修公司的,我们选择的是清包,所有辅材和主材都是要通过自己购买的。
九月三十日,终于动工了,开始挖地三尺(地下一层太低,我们计划是铺好地板后层高达到2.35CM)!并且敲墙!
这张是餐厅加大门照片,旁边是打算做个小鞋柜,看起来挖的真恐怖,剩个总电开关挂在那边。
这张是主卧,打算在飘窗边做个小书架。
这张是把衣帽间原先的墙都敲了,会做两排衣柜。
这张是阳台移门,是打算全部挖掉,并把阳台包起来。
这张是书房挖地,各位可以看到挖了几十公分下去。
里面这块小正方形的想要放个冲浪浴缸的。
这张打算做个工作区,楼梯下做个小卫生间。
[最后更新时间为 2009-10-29 09:56]
大家好。
大家好,这里有可爱的毛绒玩具,市场上买不到加高收纳凳,等等好看、好玩,能够点缀家居、赠送好友的宝贝!
http://store.taobao.com/shop/view_shop.htm?asker=wangwang&shop_nick=chaleme希望大家来看看,价格低廉,质量保障,种类多多,淘宝新店,多多支持!
首先是要确定阳台的门窗,本来是想这些东西网购一下,当时看中了网上的无框阳台,看起来效果真是漂亮,但是本地价格很贵,要480元一平,网上的只需要240元一平,可以过来安装,后来自己实际量了下阳台面积,太小了最终决定放弃,在小区附近找了家,210元一平,栋梁一号的,白色铝合金门窗,双层真空玻璃,下面包柱子的是普通钢化玻璃,160元一平,今天会过来量尺寸。
10月27日,在当地选择了美的中央空调,二拖五,总价29500元,预付定金1000元,真想空调也网上购买,但他们本地不过来安装,要是生活在大城市就好了!
10月28日晚,在本地一家专卖店定了进口皮尔萨水管,浙江中策的电线,总价5350元,预付定金300元,水管和电线假货太多,再加上时间也来不及,这些只能在本地定了,感觉好贵,明显是被人宰偏偏又是没办法。
接下去的辅材我打算把网购进行到底了,各位有卖开关,卫浴,瓷砖,灯具等网店推荐一下吧,谢谢!
还有就是小花园怎么设计,还没有想好,各位有什么好建议啊?是做个阳台房好呢,还是铺个户外地板,上面放套休闲桌椅,或是搭个葡萄架,外面一圈打算用栏栅,想用木头的,哪里便宜帮忙推荐一下,谢谢!
很好的环境,到处是花草树木。














































LZ好厉害啊。





















































厉害






















































厉害


















不错 不错!咱也要去买一个
等有钱 了.....
有钱人就是不一样啊!期待看你装修以后的照片,环境很好呀!
评论内容:发表评论不能请不要超过250字;发表评论请自觉遵守互联网相关政策法规。