太高兴了,刚刚写完的帖子被加精了,而且还上了首页,兴奋兴奋,感谢TB的支持,我会继续努力的

【户主】:谭美tammy
【户型】:两室一厅一卫
【面积】:92平米
【来自小区】:沈阳远洋天地
【风格】:纯中式风格
【适合居住人群】:三口之家
【开工时间】:2010年3月25日
【合同完工时间】:预计完工时间 2010年5月25日
【预算】:总预算10万,清包预算1.1万 ~(材料自理,另主材必须购于东方家园)
第一次参加淘宝举办的大赛,正好赶上家中正在装修,很高兴TB能够有这样一个平台供大家互相学习与分享,把我的装修与购房心得写出来与大家一同分享,希望TXM能够支持我!谢谢大家!
我与LG是2008年7月买的长白岛房子,当初想法很简单,市政府规划出了以浑河为中心的长白岛屿,在我们沈阳,目前来说生态环境来讲最好的2块宝地,一个是毗邻棋盘山的沈北新区,另一个就是毗邻浑河的长白岛了,为了给孩子一个优美的成长环境,我们毅然的选择贷款购买了第二套住房,就是想着将来带宝宝到河边沿岸的2大公园玩,另外能够上园区内也是在沈阳来说数一数二的幼儿园-南宁幼儿园。本着这个初衷,我们买了这套住房,长白岛的门户--远洋天地。
现如今,长白岛荣获“中国最具发展潜力岛城”大奖,这意味着长白岛不仅是沈阳人的骄傲,更是全国人民关注的梦想之地。长白岛成为浑河之上真正的生态型岛屿,未来沈阳现代化大都市的标志,成为一个拥有“浑河明珠、钻石宝地”冠冕的“新都心”。得知这一消息,让我有种如获至宝的感觉,原本5000多的房价现在一跃变成了7000多,当初考虑过它的前瞻,但并没有想到在这个城市会变得如此重要。而且,紧邻我们这个小区,又马上要盖沈阳最好的重点小学-和平一校,这样一来,我姑娘的上学问题也能解决,这令我兴奋异常。
2010年,春暖花开了,马上我们就要装修了,谈到装修,心情忐忑,曾经在网上找过一个很有名气的设计师,很多人对他的设计作品为之追捧,个人也很喜欢,于是找他为我们的小家做了设计及预算,如下图:
这就是现在的新中式设计风格,喜欢中式风格又苦恼于装修公司词汇定位的朋友们可以此图为参考。传上来供大家借鉴。
我和老公都喜欢中式风格的装修,可是现在装修的说法很多,当初面对各种词汇我们并不知道我们的风格对于设计师来讲到底应该叫什么,中式还是新中式,我们不知何去何从,我们还是非常感谢这位设计师,这个教训让我们知道我们到底要的是什么?!也让我知道别人喜欢的不一定是自己所钟爱的,每个设计师都有自己的设计风格,我们应该去找寻与我们有共同喜好的、更擅长于设计这方面的设计者,也让我们明确了我们的目标--纯中式风格才是我们的最爱。
简单介绍一下我们新房的小区环境吧:
这个被水系环绕的就是长白岛,当初就是被它三面环水所吸引,空气好,O(∩_∩)O~
这就是我的家--远洋国际。
一期的沙盘
毗邻远洋旁的高尔夫球场。
园区的一角,有我和我家宝贝的最爱,秋千
夏天可以在这里支凉棚乘凉
从浑河对岸远眺那五栋高楼就是我的家
更新说明:
第二页 23楼 交底结束,随时准备开工(附清水房实拍)
http://bbs.taobao.com/catalog/thread/154507-6450129-2.htm
第四页 69楼 70楼 择吉日开工喽+水电施工完毕
http://bbs.taobao.com/catalog/thread/154507-6450129-4.htm
第五页 78楼 瓦工结束
http://bbs.taobao.com/catalog/thread/154507-6450129-5.htm
第五页 84楼 木工、油工结束
http://bbs.taobao.com/catalog/thread/154507-6450129-6.htm
[最后更新时间为 2010-06-11 15:01]
本帖的助威记录:助威总计 0 点 | 查看全部记录>>设计的还可以
真不错!
温馨
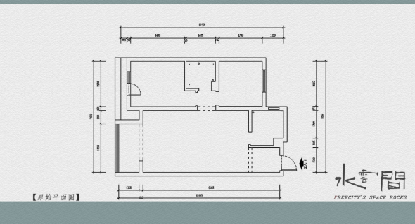
平面图楼主标清楚方位还有具体的位置
我请师傅免费帮您看平面图
刚才我大概看了下 风水上边有很多问题
外边的环境不错哦
效果图很漂亮,期待完工后的图片



真漂亮啊 风景更是个美
蛮漂亮的哦呵呵,楼上怎么那么多广告?
期待装修后效果
环境不错效果图挺好,期待更漂亮的图片上传分享!
效果图很漂亮,期待完工后的图片



非常不错,不得不支持一下.本人也是学设计滴~。。周边环境很好呀。期待装修后的图片更新哦。

评论内容:发表评论不能请不要超过250字;发表评论请自觉遵守互联网相关政策法规。