潜水好久了,出来冒个泡吧,看着大伙晒出那么多漂漂照片,我也冲动,也想晒晒咱家了,跟大家分享一下,希望大家多给意见和建议,
【户主】:女主人:有钱就花
男主人:只挣不花
小女主人:使劲花
【户型】:四室两厅两卫(叫我改成三室两厅两卫了)
【适合居住人群】:三口之家
【面积】:178平
【风格】:美式欧式胡乱混搭
【来 自】:远洋天地
【开工时间】:2009年8月
【完工时间】:2010年10月
【入住时间】:2010年4月13日(进家具,放味,买装饰品,再赶上过年,直到现在才住进来)
【预 算】:装修+家饰+家具=30W
【实 际】:装修+家饰+家具=30W多
【淘宝金额】:还没详细统计
【购房背景】:房子是2006年买的,那时候天津的房价就开始飞涨了,当时我刚刚结婚,住的是一个140平米的跃层,觉得早晚都是买房子,就在远洋刚开盘的时候买下了这套房子,房子下来后,我租给一家办公的,后来他们不租了,我那套房子不想住了,主要是里孩子幼儿园有点远,所以就决定搬这边来了,这边周边交通、学校、医院生活挺便利的,而且我们搬过来时候已经是成熟社区了,还有一个最重要的原因就是和我父母前后楼。
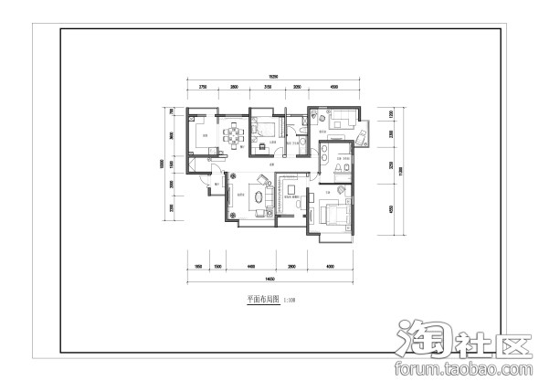
废话少说,先来一张户型图,是开发商提供的
第二页开始有餐厅,厨房,客厅,女儿房和客卫
第三页:多功能娱乐室,主卧
上淘宝门户居家首页啦,

另外一张

[最后更新时间为 2010-04-20 11:46]
本帖的助威记录:助威总计 12 点 | 查看全部记录>>【户主】:女主人:有钱就花
男主人:只挣不花
小女主人:使劲花
哈哈。这个写得有意思。
期待亲的更新。
精华鼓励 。
呃。不好意思。偶插队了。哈哈。
[最后更新时间为 2010-04-19 12:59]
房子的设计师是我一个朋友,装修队是以前给我家装过两套房很熟的一个队,天津有喜欢我家风格或者想装修找不着合适队的,我可以帮你们找,不是做广告噢。
这张是地面材质布局
这张是家具平面布局
这是一进门的入户花园,是刚进家具的照片,还没收拾好呢,收拾好了的照片忘拍了,明天补上
入户花园的吊灯,宜家买的
美克美家的床头柜,叫我拿来当鞋柜了
进门后,衣柜和穿衣镜,衣柜是北京维力家具,他家的衣柜质量不错,背板都是18MM厚的大板,我家的衣帽间都是他家的衣柜,没有让木匠做柜子,让木匠作柜子和买衣柜价格真的差不太多,有大衣帽间的朋友,可以看看他家衣柜
继续等待楼主的美图,嘿嘿
还没看明白,多上图哦
楼主有这么大的一套房子 太让人羡慕了吧没有内容了吗?
期待你的图片多多啊。
谢谢大家捧场,今天争取多发点
加精了,真高兴
期待您更多的照片
哇~~178平啊 很大很奢华楼主图片再都一点,我们会看的更清楚!期待楼主更多的照片我家的餐厅,
从餐厅可以看到厨房
餐厅的家具是比邻新村的,我很喜欢的乡村风格
餐厅的吊灯
餐桌上的装饰花,近照
餐桌椅,
餐桌椅坐垫,淘宝买的
卖家店铺地址:http://shop34170618.taobao.com/,我买少了,当时只买了两个,合计回来试试,等发过来我觉得行,想再买,就没货了,哎,遗憾,这坐垫才19.9,真是便宜,我在天津一小店看见卖35呢
厨房篇:厨房整体效果
再来一张
橱柜是南洋胡氏的,天津本地一家比较有名做实木家具企业,但是说实话这橱柜做的真是一般,后来我家定餐边柜和小柜子又找一家,在河东名家装饰城,叫嘉瑞,不比他家差多少,尤其是台面,我家橱柜用的是赛丽石,他们说什么西班牙进口的,1980一延米,光台面就将近1W了;后来在嘉瑞做的餐边柜,台面是石英石的,我觉得和赛丽石差不多,才500多一延米,哎,上当啦!!!
吊柜,喜欢这种栅栏门,柜子上摆的玻璃罐式北京宜家买的,大的9.9,小的8.9,下面的挂架和挂钩也是宜家的,挂架好像是16.8,挂钩式8.9/5个,好像是
厨房的水盆,弗兰卡的,以前喜欢大的单槽,原来的那套房就是那样的,觉得不好用,这回买了双槽
厨房迎面图片,右下方的调料罐是网购的,还有咱家的饭碗,都是在一家买的
卖家店铺地址:http://store.taobao.com/shop/view_shop-dabc6b549548178e549c61bf6e18581e.htm
这些还是去年9月买的呢,以前就在他家给我妈买过饭碗,质量不错,包装也还行,都没有打碎
厨房一角,小挂件,买橱柜送的,说是凯诗宝马的,这一套得500多呢,羊毛出在羊身上
[最后更新时间为 2010-04-19 13:57]
期待更多图片哦
评论内容:发表评论不能请不要超过250字;发表评论请自觉遵守互联网相关政策法规。