户主:成&思
面积:102平方(除电梯88)
小区:宁波镇海骆驼金邑水岸
风格:黑白灰现代简约风
装修费用:硬装12W 家具和家电:6万 软装和日用品:1万 全部20万左右
经过5个月的辛苦、纠结和坚持,终于家慢慢露出最后的样子,装修房子就像生个小孩吧,估计只有亲身体验这个过程的人才能体会其中的各种滋味,有时候烦了想放弃,叫给别人你又不放心,最后还是自己一个折腾,直到等它成形了才感觉自己好象老了,瘦了~ 但是也值了~
先附送几张请朋友帮我们家拍的美图~ 对了还要感谢淘宝,偶门家几乎所有的软装和装饰品,包括小家电、生活用品都是在淘宝上买的哦,很多朋友都说我们家虽然简单但是细节做的好,都是我淘了几个月的成果呢~~
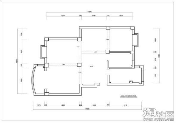
原结构图
设计后的平面图
小房间的全景~
客厅全景~
餐厅全景~
小房间可以说是我的得意之作,呵呵 因为小房间的面积非常的小,现在这样的布置,有了很多的储藏空间,除了大的移门柜子外,门后面也有个柜,地台下有三个大抽屉 写字台右侧有个隐藏的门 打开能放非常多的东西 实际就利用了床头做出来部分的那个死角~
小孩房的灯~
客厅电视柜
餐桌柜照片展示~
阳台~
烛台和桌旗都来自淘宝~ 到时候上连接~
卫生间干区台盆,牙刷牙膏和托盘都来自淘宝,还有龙头也是TB的~
黑和白的厨房 ,置物架 调味料罐 和筷子都是TB的~~
淋浴房的置物架和皂液器,来自TAOBAO~
转角的置物架 三副画 和落地钟表 来自TAOBAO~
进门后看到~
床上的靠枕来字TAOBAO~
小孩房的钟和 墙贴来自TAOBAO~ 床品 和靠枕也是~
以下是本人自己拍摄自己编辑的,呵呵 凑合这看 比较具体点~
进门篇……
全牛皮换鞋凳,外贸余单,来自TAOBAO~
厨房篇……
餐厅篇……
干湿分区的卫生间篇章~
台盆
开放式书房篇……
我们俩上网的地方 大电脑是我的 椅子也是一黑一白 挖哈哈
开放式书房一角落~
书房的照片墙~
小房间篇……
台灯和书房的灯都是TB的, 所有的花也是TAOBAO的`
小草人也是TB`
主卧篇……
进门的大镜子和台灯是同家店的~
所有的纸巾筒和垃圾筒是是来自TB~
客厅篇……
46寸SHARP 给宁波人打打广告 正在播出“讲大道” 这是一档宁波话节目呵呵 意思就是聊天 都是用宁波话播新闻的
阳台篇~
下面给大家提供一些淘宝连接 ,从装修开工就开始淘宝了,连家里的牙膏牙刷都是淘来的呵呵,可以说90%的东西都非常满意,甚至给我惊喜,大家要是有需要可以进去看看哦~
餐桌的烛台及书房的银色的树的摆设:
http://item.taobao.com/item_detail.jhtml?item_id=fad435ae6b5e0e11b7e372f6453cb009&x_id=db1
皮质垃圾筒和纸巾筒还有杂志篮包括像框~
http://item.taobao.com/item_detail.jhtml?item_id=f93dda9ed6e4f6b205305ef720aff1c3&x_id=db2
小房间床品及靠枕~
http://item.taobao.com/item_detail.jhtml?item_id=61a1c7a5b56840f149861226a0a0c05e&x_id=db2
客厅地毯:
http://trade.taobao.com/trade/detail/trade_snap.htm?tradeID=33915121987124&itemID=f52c6e8b62f41da7f7d605f794e7d3cb&xID=0db1
牙刷 韩国的:
http://item.taobao.com/item_detail.jhtml?item_id=7e5cbbfaf7074d4f248febe97ed1d524&x_id=db2
外贸换鞋登:
http://item.taobao.com/item_detail.jhtml?item_id=a5013649792743a2fa58b877bb598e98&x_id=db2
拖鞋:
http://item.taobao.com/item_detail.jhtml?item_id=ff80acce31864e2cb730cf9b3b5caf2c&x_id=db1
花茶及茶具:
http://trade.taobao.com/trade/detail/trade_snap.htm?tradeID=33652153197100&itemID=cc652c83884ad772ebd212a530f249fa&xID=0db2
墙贴:
http://trade.taobao.com/trade/detail/trade_snap.htm?tradeID=33417315637196&itemID=8c479d36885272f4495c3f93158f9635&xID=0db2
小房间文具收纳:
http://trade.taobao.com/trade/detail/trade_snap.htm?tradeID=33398198307131&itemID=7059f0fa5fadcbe9d476b18d3e919f82&xID=0db1
各类文具:
http://item.taobao.com/item_detail.jhtml?item_id=3bf2c8185985d2225d433f01d3212473&x_id=db2
电视柜上的黑白树摆设:
http://item.taobao.com/item_detail.jhtml?item_id=576ec1dbbe591e9a8551b2fee8a6d364&x_id=db2
小房间地毯:
http://item.taobao.com/item_detail.jhtml?item_id=8df529b5c33033490862754b781d82e9&x_id=db1
家里的所有画:
http://trade.taobao.com/trade/detail/trade_snap.htm?tradeID=32911710097191&itemID=6d29697da62a6cdcb0886283d52c6c93&xID=0db2
书房灯、台灯和主卧落地大镜子:
http://trade.taobao.com/trade/detail/trade_snap.htm?tradeID=32333009857171&itemID=78c8df2a4d3f04b1e6540b2111089153&xID=0db1
阳台的灯~
http://item.taobao.com/item_detail.jhtml?item_id=6cba045b11a35cffbd45cb90a0fae729&x_id=db1
微波炉:
http://trade.taobao.com/trade/detail/trade_snap.htm?tradeID=32150146327141&itemID=5156ac8afe0b6bfd62a22e17ac73cece&xID=0db1
小房间无腿椅:
http://trade.taobao.com/trade/detail/trade_snap.htm?tradeID=32051579567106&itemID=ff1c17825c65ef489884abd9ce35aded&xID=0db2
调味料罐和所有餐具:
http://item.taobao.com/item_detail.jhtml?item_id=d119355c9832e31babf115254d502057&x_id=db2
台盆龙头:
http://item.taobao.com/item_detail.jhtml?item_id=e2298aa5b79fa581f654c06e24e1b639&x_id=db1
厨房、淋浴房间置物架:
http://trade.taobao.com/trade/detail/trade_snap.htm?tradeID=31984480517162&itemID=5f82c37f65162804b8cab866529c119a&xID=0db2
书房书模具:
http://trade.taobao.com/trade/detail/trade_snap.htm?tradeID=31680674037165&itemID=06f4c98c5491259ad23435c43b1b749f&xID=0db1
筷子:
http://trade.taobao.com/trade/detail/trade_snap.htm?tradeID=31454532547116&itemID=652e55952aeccf145ed2225023c21776&xID=0db2
咖啡杯:
http://trade.taobao.com/trade/detail/trade_snap.htm?tradeID=31404961347185&itemID=c40a8b3e71cba6953fe3f535692e56e1&xID=0db1
韩国可爱文具:
http://trade.taobao.com/trade/detail/trade_snap.htm?tradeID=31387537817141&itemID=a1ae1f13b16f72ad8d0ebab86e704b1b&xID=0db1
客厅三个正方形置物架:
http://item.taobao.com/item_detail.jhtml?item_id=d8150ba0f4c417521a08424678878522&x_id=db2
花瓶:
http://trade.taobao.com/trade/detail/trade_snap.htm?tradeID=3124913676&itemID=8cd6c665c19a23479ffa6cf0099c3803&xID=0db2
水果盆:
http://trade.taobao.com/trade/detail/trade_snap.htm?tradeID=3115473422&itemID=ab3820d9da0dd2a70734e079ca534fa4&xID=0db2
书房白色收纳:
http://item.taobao.com/item_detail.jhtml?item_id=da5c5cb0b808f766375ac007d7d9e4cb&x_id=db1
小房间的钟:
http://trade.taobao.com/trade/detail/trade_snap.htm?tradeID=3111648293&itemID=879874af98699f89fac77b60e32b52be&xID=0db1
客厅落地钟:
http://trade.taobao.com/trade/detail/trade_snap.htm?tradeID=3106530065&itemID=af02835ffcee2fb98a939a49ceb4ca27&xID=0db2
商务文具:
http://trade.taobao.com/trade/detail/trade_snap.htm?tradeID=3105650023&itemID=7d263c63ce66593dd99f798721e82714&xID=0db1
可爱娃娃:
http://trade.taobao.com/trade/detail/trade_snap.htm?tradeID=3066453951&itemID=ead83cb8a684630fdb157e94017c8110&xID=0db1
厨房、卫生间等垃圾筒:
http://item.taobao.com/item_detail.jhtml?item_id=b9d9333595a783f1b2fd96a55a465756&x_id=db1
先到这里吧~~
续:装修日志放上去几天后,得到了很多淘友的肯定和支持,很开心,还放到了“今日焦点”的家居版面上,更多的朋友问了很多有关的问题,由于新房刚装修好,在忙下月准备结婚的事情,不能及时更新,上贴的时候也比较仓促就放了一些图片上去,现在给大家补充一些装修过程中的图片:大家自己研究研究。
1、小房间的家具是做的吗?地台和柜子是如何设计的?
小房间的面积非常小,原本打算做一般的客房,放张1.5的床就OK了,后来也是收集到了一张照片,给我感觉很好,就按照我们家自己的实际尺寸做了一些借鉴,最后就是大家看到的这样。房间小床的地台和所有家具都是木匠根据施工图纸做的,然后全部刷白漆~原本打算墙面刷颜色或则贴墙纸的,后来发现白漆和墙面的白是两种不一样的白,放在一起效果非常好,所以大家不要当心会出现全白很难看的状况。白色的椅子是TB的。小房间是很多朋友夸得最多的一个地方,也是本人最满意的地方,除了它很漂亮外,它功能性也很墙。小小的房间有床,一个柜子,一个高的柜子 地台也成为一个很好的储藏空间 还有很多的隔板~
二|餐厅的柜子
其实餐厅的柜子本人不是太满意 ,因为不是整体做的 。分三部分完成,框子是木匠完成的 再刷油漆 中间的凹进去的照片展示是橱柜公司做的,和厨房阳台的台面用的是同一款石英石。柜门是移门店订做的。
三、书房大柜子,书房的柜子也是本人是收集图片,有一张非常喜欢,干脆就一摸一样搬到自己家了 ,此柜子是非常大气,高度是正面墙的高度,隔板用了8工分的厚度,看起来非常简单,但是木匠做起来花了很多工夫。第二层作为一个上网的空间,有两个座位,非常省空间,不用买书桌了。两人同时可以上网。
四、关于沙发,灯的问题。
沙发和客厅灯都是当地买的。沙发是欧的家具买的,其他地方也有连锁的,亲们也可以在百度上找下他们家的网址。我在淘宝上也看到过一样的,广州那边的,因为价格相差不多,所以我选者在当地买了,我们家所有的家具都在一家店里挑中的。灯也一盏样灯,开家1650,由于地盘有些生锈了,装起来以后是看不到的,就砍了很多 ,880成交的。具体家具的价格我在第4页有解答的。
五、阳台
最后臭美一下 ,主人家下月8日大婚,秀下照片:打下广告,楼住的婚纱照片是在宁波CXC摄影工作室拍的,宁波江东北路210号 电话27665772
http://www.nbcxc.com/他们家的网页,有兴趣的朋友可以自己去看看。偶的照片是陈亮摄影大师的作品,本人很喜欢他们家的风格,非常特别,绝对不会和别人的婚纱照有雷同,顺便说下我们家的照片墙(照片和框子)都是CXC工作室独家提供的。
[最后更新时间为 2010-04-15 09:41]
本帖的助威记录:助威总计 1 点 | 查看全部记录>>太漂亮了,喜欢这种风格!
这房子装修的漂亮,第一眼就喜欢上了,赶紧回复,完了再慢慢看
不错不错很漂亮
期待更新更多的图片
有风水上边的问题敬请咨询
挺好看的就是下面那么多广告好乱啊呵呵 是的 我也喜欢现代极简风呢 我们家起来装的很简单 就是我在淘宝上买到不少好东西 软装方便比较有优势~~搞得不错,停下脚步,慢慢欣赏一番。
呵呵 谢谢大家支持 家里也是刚刚装修好 第一次装修 总算有了一次发挥的机会 虽然很累 不过还是收获多多了~~喜欢
很漂亮的小家.精华鼓励 .黑白灰,我很喜欢的颜色。真漂亮,很舒服!显得很上档次,很漂亮



我也喜欢,但是没钱啊!!!!!!!!!!
评论内容:发表评论不能请不要超过250字;发表评论请自觉遵守互联网相关政策法规。