【户主】:还是叫“装”主吧!淘宝ID:小样呵呵muse,请叫我小样,不介意的!
【户型】:三室两厅两卫一厨
【面积】:建筑面积150方,实际125左右。高层公摊多,好在户型好~!
【来自小区】:杭州下沙东区钱塘江边多蓝水岸。为远在下沙的莘莘学子们做做广告~
【风格】:现代简约
【开工时间】:2010年3月1日
【合同完工时间】:大概三个月,设计师说的~
【预算】:硬装15万,但愿不要超预算~
好开心呢!一大早醒来就发现偶的帖子被放头条了,这是对我莫大的鼓励呢!
自从装这个小屋以来,有多少夜晚睡不着觉,做梦都梦到客厅要怎么设计,要铺什么地砖,贴怎样的壁纸。同时又借鉴了很多网站和帖子,这个窝才一步步的成型。因为工作在市区的关系,平时都没有时间回到下沙来看进度,更不用说去亲自为它增砖添瓦。大部分的时间都是偶挑选DD,BF来落实。实在是太辛苦他啦!

偶这个人,可能是爸爸以前在装修家里非常用心的原因,对于家里的装修要求非常高,把鼎尚的师傅们弄得都非常头痛,不懂的我就马上打电话给老爸,当然他的风格是比较气派的欧式,而我还是喜欢现代简约!
在接下来的帖子中,除了继续进度之外,还会给大家分享我所喜欢的一些TAOBAO上的小店。未来软装的时候就全靠他们了!都是我参考了无数优秀的家装帖子中积累的成果,相信大家一定会稀饭!
2010年6月8日
小样呵呵
-----------------------------------------------------
O MY LADY GAGA! 我的美丽小窝就要在我的手下诞生啦!虽然还没开工,但是它注定是美丽的,注定是时尚的,注定是光彩照人的,因为我已经借鉴了N多好的网站和帖子,不能让大家失望呢!
年前开始寻找设计公司(一开始觉得好唐突,因为马上要过年了,不过后来事实证明我的英名决策,因为设计师说过年期间方案就可以帮我出好,回来就可以装修。没问题的话,可以躲过梅雨季节。)没有想过找太大的公司,米要的多不说,自我感觉年头越久的公司对时尚的敏感度不高,很容易就装成妈妈们喜欢的风格了。最终确定在了杭州的鼎尚装饰,里面的DANNA 设计中心,风格现代,是我喜欢的!而且设计做完把施工直接包给鼎尚做,方便。作为在市区上班的我们,最希望的就是能够简单,方便,省时间。而全程VIP设计师跟踪服务,把以后选软装的烦恼都省了!
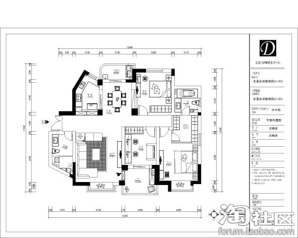
之后设计师进行了出平面图,现场量房,然后平面图修改,签设计协议,一系列过程后,我们放心的回东北过大年去了,而设计师在过年期间也把精设计图+施工图+里面图都出来了,OK目前就处在施工前最后的设计稿修改阶段。在这里,先给大家上几个原始户型图和修改后的设计图SEE 下!
修改第一稿
午夜了。眼睛很痛~可是还是没有睡意。自从开始装这个房子之后,基本上每天都在思考中度过,不知道耗了多少脑细胞呀!好在,房子按我的计划在一步步的变化,痛苦的同时,更多是快乐。好久没来,贴子都沉默了,所以不管多晚,今天一定要来。
前两天做了一份清单。大概就是将我们所花费的费用一笔一笔清晰明了的通过excel计算了下。我想这个清单是必要的,做起来也十分简单,每一位在装修中奋战的xdjm都需要哦!
不说了,房子到底进行怎样了,用图说话,有图有真相嘛呵呵!
偶的小狮子和小区内景~说实话,这个小区的人群已公务员为主,因此是相当低调。隐藏在江边众高调楼群之中,外观可谓是黯然失色。不过咱不能光看外表是不,无论从户型,还是幢距,都没的挑!偶们家南阳台的景色更是无限好,稍后奉上!
接着上图!
开工第一天,师傅二话不说,开始砸墙~这个房间偶设计成了开放式书房,因此墙通通砸掉!
砸墙完毕,开始铺设电线。鼎尚还是蛮规范的。墙上贴好进度表,禁止吸烟之类的标牌,电线隐蔽工程做的也不错。
偶的照片都好大啊!传不上来。脑袋要炸了,明天接着来~晚安啦!
2010。4。20
小样呵呵~
看了上面的日期,好一阵忏悔,如今已经是6月份了,因为鄙人的懒惰,一直没有传新PP,而偶的小窝也已经大变样了,所以今天还是要让大家一览小窝的新形象。接着上P~
主卧里准备装圆弧形玻璃割断
天气好好,从南露台的角度拍小区,视野超级开阔,还能望到不远处的江和将对岸的山~
从进门处看室内,客厅的电视墙被我挖了一个大缺口~
第六空间看到的超爱的沙发~价格有些巨,不过也算第六空间里性价比最高的了~
这次装修买的瓷砖全是L&D,上面这款貌似BULBERRY的砖是一见钟情,二话不说搬了回来~但地砖回来一看是完全没抛光的,马上退了换了诺贝尔~
餐厅的设计,墙全部打掉又砌上,猜猜有什么玄机?稍后揭晓~
其实整个装修过程中父母没有任何参与,完全是我们两个在弄,而我这个总设计师其实也蛮闲的,由于上班和这个房子的距离太远,所有有关材料购买运输全都由BF负责,自己只是坐享其成罢了。。在这里,还真要感谢下吃苦耐劳的BF,他就像个老黄牛一样的,吃的是草,挤的是奶。还要满足我的要求,太不易了!
这不上个周末,我才又回去验收了一下成果,发现小窝已经有很大变化了,下面就把变化展现给大家!看图先!
进门的左边原本设计了一个硕大的嵌入式衣柜鞋柜,结果一敲墙,好么露出了钢筋,这些知道原来是敲不得的,只能在外面打鞋柜了。。那就发挥我的主观能动性,设计出别有一番滋味的外式鞋柜吧!
向前看,被我挖掉的电视墙已经被补上了一个很漂亮的雕花,这个雕花是我选的,比较符合现代感~
地砖已经铺完了,怕脏~鼎尚还是蛮负责的,给铺上塑料布~
那地砖的尊荣要稍后再见喽~
偶的开放式书房!
亮点1:不规则的隔板架延伸到房间 亮点2:地面有10公分高的地台 亮点3:书桌为吧台式
其实书桌本来想普通的就OK~但无奈想和旁边的隔板架做个延伸,可是要么太低要么太高,还是吧台好看一点。。这个设计师没有做好,必须要说~还是我自己的创意。。已经有地台了,但现在感觉地台反而没起到效果,还增添了麻烦。
主卧的玻璃隔断。里面是左右两个衣柜,再进去是主卫。这是一个硕大的卧室。被我们分割成了三部分,我不喜欢很大的卧室,感觉没有安全感。圆弧玻璃好贵。但被BF还价还到1500。12公分的玻璃,很厚很结实。
主卫浴缸。这个格子很有范哦~浴缸是箭牌的,东箭搞活动买的,800多吧~蛮便宜的。以后可以泡澡了,欧也~
主卫不大,但有窗~因为在主卧里,也就两个人用用,还是很舒服的~
次卫马桶后面的马赛克~我挑选的红珊瑚,用进口小玉颗粒做的,感觉超美~本来想侧面也延伸出去,但贴砖师父说没法手边,哎遗憾。第一次专修必然有很多遗憾,有遗憾才有更好的憧憬嘛^_^~这样一块是930元。。快一千了,预算这次超了好多了~
客厅的飘窗~本来有很大凹进去的空间,被我做成飘窗,铺上人造石,下面做成柜子。好深的柜子哦~可以放好多DD了。偶畅想着以后好好布置这个飘窗,躺在上面边看书边看外面的江景~
师傅们开始安装餐厅里的镜子啦!刚才的那个谜底可以揭晓喽~餐厅会有一个从墙侧到墙顶延伸的镜子,以后家里随意点个灯,就四处发亮^_^镜子安装有技术的,玻璃胶有毒,师父不让靠近,他们却说已经习惯了,辛苦啊~
最后一块啦!师傅们累坏啦~可以看到墙侧柜子的镂空门,这个颜色就蛮好看的了~当然以后还要涂色的~以后可以在里面放些备餐用的DD~
好啦!以上就是现阶段的成果,都奉献给大家了!期盼有大家的支持,多点人来顶顶哦!
小样呵呵
2010年6月8日
给大家看一张DANNA给偶家做的效果图!其实有很多不一样的地方,壁纸啊。。灯啊,就是这么个意思,等偶的小窝装好后看看和它有什么区别!我相信只有更好!
这两天不能去看进度,只好周末再去,为了不让各位XDJM们久等,偶将已经购买的电器卫浴整体厨房等和大家分享一下~
电视机:索尼E70 52寸(客厅), E40 42寸(主卧) 次卧没钱买了,以后再说呵呵~
冰箱: BOSCH经典款,对开门珠光白色。
国美搞5 1打折时买的,8399。
洗衣机: BOSCH滚筒洗烘一体机。本来想低炭环保些,但杭州一下起雨衣服3天都不会干,哪像俺们东北的
大太阳来的那个快。所以还是买个带烘干的吧! 同样国美活动,4000多?忘了。
厨房三件套(抽油烟机,炉灶,消毒柜):方太O-TOUCH系列。太好看了~配我们家的香草色橱柜,一定灰常的美。尤其是那触屏的感觉,让俺一不小心就奢侈了。心想着以后就疯狂的擦吧!家里镜面的东西太多了!
厨房布置:有MM希望看到偶家的厨房设计,在这先把厨房设计图给到大家来看一下~偶们家选的是金牌橱柜西曼三。
当然偶家厨房没有那么大啦~所以呢,只是选择图片左侧的那部分。至于布局嘛。请看图~
大概是这样的啦~当然后期在我的坚持下有所改动。。把水池方到了窗边,因为我觉得做饭就应该按照洗菜,备菜,下锅这样的顺序啦~^_^!支持我的请举手!
热水器:方太遥控燃气热水器。可以随意切换五种模式。夏季洗澡、冬季洗澡、刷碗、洗衣。。还有一种忘记了^_^~稍后上图!
小样呵呵
2010年月8日
最近公司要有高层来访,办公室里每个人都绷一根弦,回到家中还要考虑装修的事情,实在辛苦。。但是告诉自己不能半途而废啊~所以马上上来和大家汇报工作鸟~~~
今天要考虑的有以下几个问题:1。墙壁颜色。 2。衣柜门样式 3。各个房间灯的样式。说实话都比较头痛的。初步定客厅奶咖色 主卧浅紫色 书房奶绿色 。 衣柜门采用拉门,但材料还没有想好。。另外灯的样子也希望大家帮帮忙啦!主要是餐厅灯。我比较喜欢现代感强的吊灯。期盼大家的回复。谢谢!
[最后更新时间为 2010-06-09 21:22]
本帖的助威记录:助威总计 35 点 | 查看全部记录>>很气派的大房子。。我喜欢
期待更新哟。精华鼓励 。谢谢楼主辛苦写帖分享,支持~
[最后更新时间为 2010-06-07 17:09]
在我心目中 这个面积是豪宅呢
!!!
我等漂亮的美图哈
没看到马桶呢?装修出来肯定很漂亮···
嘿,辛苦了,来支持下.
额,楼主家房子好大哦.嘎嘎
装修很辛苦的,我爸妈在家装修累个半死,支持下楼主!好贴,支持了支持~~~浴缸那里的格子太喜欢了。期待中,想看装修后的图片哟评论内容:发表评论不能请不要超过250字;发表评论请自觉遵守互联网相关政策法规。