家里快装修了,谁来帮我设计设计啊(附户型图)

我家马上开始装修了,但是因为我家的正门正对着厕所门,所以很纠结啊。

我们是一家三口,希望哪位大师帮我出出主意,谢谢了。

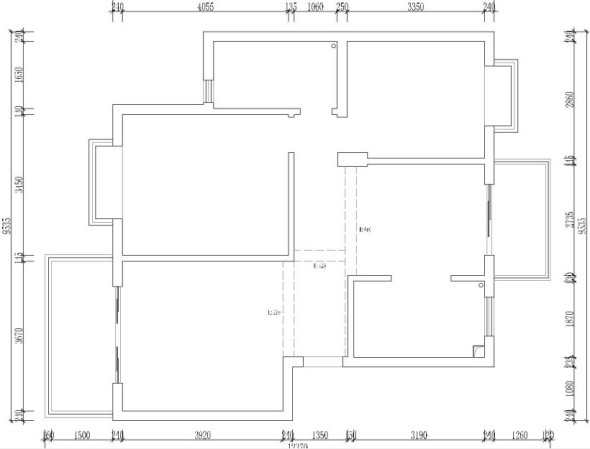
现在我附上户型图 —————— 虚线的是梁

主要是想想这个厕所门有什么解决方案,因为不是说厕所门正对大门不好嘛

希望大家能够帮忙想想,多谢啦

本帖的助威记录:助威总计 0 点 | 查看全部记录>>

最新评论

发表评论

为“家里快装修了,谁来帮我设计设计啊(附户型图)”说几句吧

评论内容:发表评论不能请不要超过250字;发表评论请自觉遵守互联网相关政策法规。

热卖商品

    Copyright © 2009-2024 yr.pinnace.cn All Rights Reserved. 17育儿网 版权所有

    粤ICP备11040004号-1