话不都说这就开始来介绍我朋友的家 我觉得不错很实惠 很适合现代都市小生活。
所以就推荐给大家了。
如果拿女人的妆容来形容我朋友的家装,我想就像女子那清描淡抹的淡妆,
表面看上去漫不经心,实则心思满满。
素材汇报如下:
面积:建面110平左右,使用面积85平左右。
设计:可人蛋蛋
费用:软硬目前一共5.2万(除以前的旧电视,冰箱,其它几乎包括所有屋内的东东)
装修方式:清包
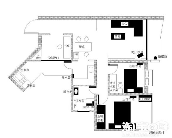
户型平面图,在原有基础做了小小的改动。把入户花园改成了半开放式书房,其它没动。
开始上图, 460元淘来的鞋柜和一眼看上的画。
客厅,外面的阳光很好,可是使劲的拍,也只能拍出这种昏暗的感觉。总结:相机和拍照水平太烂。
继续客厅
撒满阳光的午后
客厅和主卧用的都是立邦的浅丁香,非常淡的黄色。不仔细看看不出来,很清新的色调。
950元一套的餐桌椅,看上了它的简洁。但又有点担心它的脆弱,没想豪气冲天的
通往房间的走廊,都说收纳很重要,确实。房子没有做任何吊顶。就利用了进门口和这个走廊的顶
部做了收纳柜。那个正方形的盖子是可以活动的。可以放很多乱七八糟的东东,感觉不错。另外主
卧阳台和书房一角也有做收纳柜的,
过道上空储藏柜的设计图。
储藏柜的隐形活动盖子
沙发照再发一张,看看没有阳光美化的效果。落地灯是某品牌的,150元.
落地灯近景一张,坐在这里看书是个不错的选择。
网购来的珠帘,作为餐厅区与客厅的隔断。很喜欢珠帘。
儿童房,差不多是按照儿童的风格装修的,长度1.5米,
因为前期主要还是当客房使用.很喜欢这种淡淡的蓝,看着比较清爽
床头柜,120元。
进主卧罗,主卧本来那个阳台是个外置转角的,可是不想让主卧显得太局促。就把它封起来了,考虑到还想欣赏景观,做的是推拉门,不过唯一不好的就是下雨会飘 雨进来,房间铺的是强化地板,不能汲水的。所以买了一块雪尼尔地毯。可以挡挡飘雨。算是美观实用并重吧。封阳台花了2000大洋!
后期加了点小装饰
主卧台灯,49元,外贸的品质,实惠的价格,呵呵
床和衣柜还等下能看到的书柜都是找厂家订做的,板式材质,刷的烤漆面,质量还不错。
床+两床头柜+衣柜,一共3980元
最最喜欢的角落和最最心爱的摇椅!
美貌的抱枕
硬装刚完成时拍的主卧阳台储物柜。一直做上顶的,超能放东西。对了,这里要提醒下各位即将装修的朋友,如果做少量木工,不一定要选择用油漆刷面的。我们 买的就是饰面板贴的,等柜体做好后,直接往上贴就行了,一般建材市场都有可以到做家具的地方问问。各种花色都有,因为刷油漆的工人手艺不好的话,效果会很难看。一张一大卷,才花了60左右吧。贴完后还绰绰有余。
哈哈本房屋版权归可人蛋蛋本人所有。
[最后更新时间为 2010-07-28 23:52]
本帖的助威记录:助威总计 1 点 | 查看全部记录>>看起来很不错很清雅,蛮喜欢这样的风格的。
怎么都没有厨房和卫生间的图片呢?
呵呵,我是做厨卫的,比较关注这些,可以顺便帮您看下。
很不错简约风格 ,又很经济
期待楼主继续上图。挺漂亮的呢
很多东西其实淘宝上买是挺不错的呢
满清晰。喜欢哇!软硬装才5.2万呀!很不错!简洁大方!
简约现代~支持!感觉挺清爽的,大方,舒服,呵呵
家具挺漂亮的,蛮上眼的,
赞一个
到小店看看哦
13楼 亲亲我的宝贝8087 说:
确实比较清爽~~不错·,不过真的只花了5.2万吗?装修这么好不可能吧好多广告。不错 支持下果真那么便宜吗,看起来很不错哦,,
不过看楼主说房东是个设计师出身的,有好东西那是必难的。
评论内容:发表评论不能请不要超过250字;发表评论请自觉遵守互联网相关政策法规。