
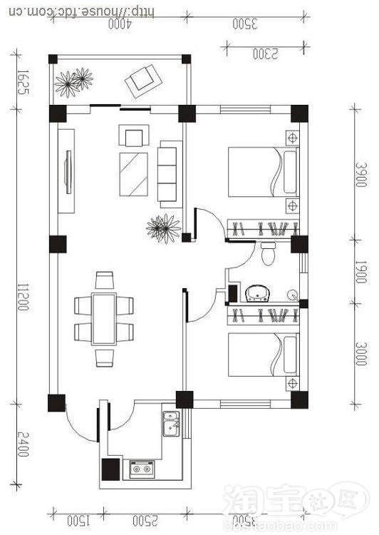
这是我家的图,面积88平,套内面积好像只有75平
我想:
把厕所改大;
厨房面积也小,本人想的是把和餐厅间的墙打掉,厨房场外阔一点,做个半开放的厨房,不知道还有没有更好的办法;
阳台想做榻榻米,客人多了可以睡一两个人,这是我爸妈的建议,我自己也觉得有道理,但具体怎么做,不知道,还有一个贪心的要求,想要一个学习一角,看看书上上网,呵呵,但最好不要在卧室。
我的小家是坐北朝南阳台外就是湖,通风和采光都很好的,希望设计师不要把这两个优点破坏掉。
哇,我的要求有点高耶,不知道会不会有高手帮我解决。
期待!!!!!
[最后更新时间为 2010-07-06 11:31]
本帖的助威记录:助威总计 0 点 | 查看全部记录>>自己先顶一下,请大家多多给意见请设计师吧!我也想知道啊,我家也有这个情况,我们一起期待吧,我相信会有优秀的设计师帮我们解决的厕所向房间两侧扩大是可以的,但不宜扩得太宽,也要考虑到房间的空间;厨房可以做开放式的,在厨房门口处做个吧台(家里人都没意见的话).至于阳台,宽度只有一米六,一改怕会影响到景观,还要考虑到下雨和物管是否同意??
胭脂是广州的设计师,
客房的门改在餐厅开,做一个隐形门,原来客房开门处封掉,将洗手台外置,这样卫生间里面的空间就好用很多了,厨房的墙可以外扩,可以加大厨房的空间,当然如果能在侧面做个吧台就更好了,也可以作为上网的地方,也或者考虑在原有阳台的地方抬高做榻榻米,但外阳台要封无框窗,但恐怕没办法住人吧,因为你家只有一个阳台,那个阳台要兼顾放洗衣机和晒衣服的地方呢.这是我的初步意见,希望能给楼主一些帮助.
我曾想把洗衣机放在阳台上的,可想到不好排水,就想把它坐在橱柜里,不知道可以不晒衣服,我按个晾衣架,晒外面去呵呵,我怎么变成游客了,
哦,没登录
我看了你的图后,有个想法,你的厨房的墙可以拆了,把餐厅和厨房放在一起,经常开伙就不要选择开放式的厨房,厨房的墙往前推,然后在你的靠卧室的墙,搞个空间留出来做书房,和你的卧室打通,厕所改的方法有很多,可以往大的那个房推点,还有个视觉上大的,就是做成全玻璃门的,隐行门的都行,阳台可以垫高做塌塌米,旁边放个吊篮休闲看风景,那你晒衣服就得往外面晒 了,我是武汉设计师,有需要可以加我qq526193363"在你的靠卧室的墙,搞个空间留出来做书房,和你的卧室打通"这句话有点不明白,是主卧还是次卧的墙?怎么个打通法?评论内容:发表评论不能请不要超过250字;发表评论请自觉遵守互联网相关政策法规。