【户主】:xzts_2000
【户型】:两室一厅
【面积】:56平方
【来自小区】:上海市宝山区罗南二村
【风格】:自己设计,田园风格
【适合居住人群】:三口之家、小两口
【开工时间】:2010年5月18日
【合同完工时间】:2010年7月8日
【预算】:半包2万 ~(主材自理)
等我整理照片哦,精彩无限~!!!
2010-6-8 更新!!!
1、前期设计阶段
1.1、原房屋平面图:
1.2、房屋拆墙图:
1.3、新建墙体图:
1.4、平面布置图:
1.5、吊顶布置图:
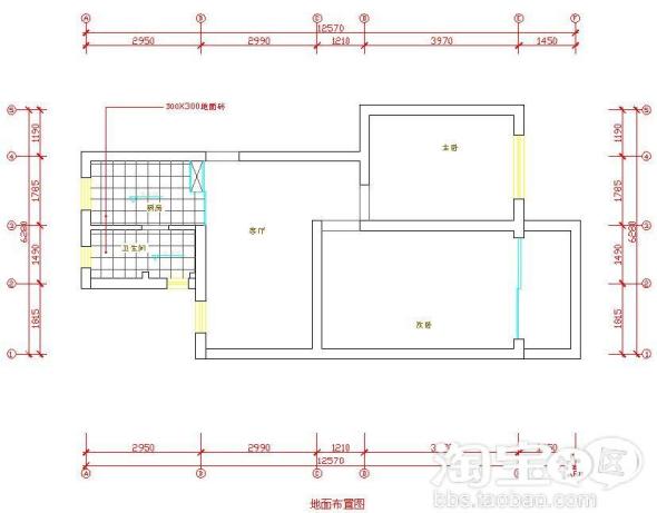
1.6、地面布置图:
1.7、开关布置图:
1.8、插座布置图:




















2010年7月27日跟新!




























谢谢,希望能对我家多提宝贵意见,等下次更新家具哦~~~~
[最后更新时间为 2010-07-27 16:01]
本帖的助威记录:助威总计 0 点 | 查看全部记录>>我来做个沙发,呵呵!抓紧上图片哦!期待更新。好的,赶紧上哈。
多上些照片哦
当初我找的设计师给我们出了一张平面图就把我们打发了~ [最后更新时间为 2010-06-08 12:31]
好哎呀呀,装修真的比买房还烦~~~挺好看的评论内容:发表评论不能请不要超过250字;发表评论请自觉遵守互联网相关政策法规。