【户主】:ljuqi77
【户型】:三室两厅+两个大阳台
【面积】:153
【来自小区】:湘潭霞光山庄2期
【风格】:现代简约
【适合居住人群】:五口之家
【开工时间】:2010年5月12日
【合同完工时间】:2010年7月12日
【预算】:半包6万(包油漆、板材) ~(其余主材自理)
5.28日更新 地面找平小差曲
内卫、厨房、外卫、阳台瓷片多图上传
网购保险箱华丽丽的到了
7.5日更新 网购进门抛金砖铺贴效果
网购马赛克飘窗铺贴效果
内卫、厨房、外卫、阳台瓷片铺贴效果
衣柜、步入式衣柜、酒柜等柜体初步打造效果
装修前记一:漏水篇
还没有装修,内卫就漏水了,跑到楼上住户家一看,相对应漏水的地方除了瓷砖地板啥都没有,于是,楼上住户华丽丽的说所有管道他都没有动,装修前放了一个星期的水,没有问题,是开发商的问题,于己无关!
目标转向物业公司,物业找开发商啊,物业说开发商在开发湖湘林雨,必须联系对方来修理,时间那可不一定,通过我们坚持不懈一个月电话的密集轰炸下,开发商处的维修人员来了,耗费了据说好几包堵漏王,拍着胸脯说以他N年的堵漏经验,至少是5年之内没有任何问题!于是乎带着怀疑,高兴了,开心了!一个半月的期盼终于有结果了,装修可以进场了!(之前请教专业人士,说不砸掉天花板重新搞防水,并把漏水的地方修好是治标不治本,但楼上的用户立马说“不是他们的原因,他们的马桶好贵把贵,3000左右吧,砸了谁负责,”如果能这样不漏了当然皆大欢喜)
正当装修公司打算进场前一星期,连续一个星期的雨,河里暴涨的河水,防汛的信息等等终于让我们有了点警醒,想着要去看还漏水不,结果,墙顶上的无数个水珠显示一切都是痴心妄想。继续联系物业公司,然后又开始了以上内容的循环!
难道漏水问题的解决就跟装修一样持久,3月底持续到今,2个月都不能搞定吗?
装修前记二:漏水篇
今天又跑到物业处与开发商派的维修师傅协商,师傅睁眼说瞎话,说没漏水啊,瞧,都没滴水。天啊,天花板上那么大片水渍未干!难道漏水的定义就是水必须滴到地上?匪夷所思!不断的争论,最后师傅干脆一句:我是打工的,不行你找老板吧!随即喊来了物业,物业说,不让他修你还能让谁修,那个某某某单元修补了三次就修好了,一次肯定是修补不好的!理直气壮!理所当然!
事实证明,物业和开发商是伙同的!一起的!最终,达成协议,再加厚补一层堵漏王(就是在有水渍的地方再覆盖一层),不行就和楼上、物业协商敲天花板的事宜!
一方面担心漏水无止境,总觉得这个堵漏方法是不可行的却无可奈何,另一方面觉得要是继续漏水就敲掉天花板,纯粹的口头协议—貌似开发商不会那么土松吧。革命尚未成功,同志还需努力,总有种莫名的预感,装修搞好了,我的天花板还没好!
希望走好运:今天订购了德尔的地板,价格还不错,希望地板质量好,同时抽奖中了世博会的纪念金条,(薄薄的怎么看都和“条”沾不上边啊),希望这个好运能在我未来的装修上,内卫的漏水问题解决上持续下去!
装修日记一:大暴雨前开工:5月12日
5月13号的雨下的那么大,那么久,那么让人震撼!办公楼前的一口水塘都塌了,夏天本可以看到的垂柳全部倒入了池塘的怀抱,本来塘里水很浅,下班时分路过突然发现涨了一米多的水,池塘里和池塘边的水泥路居然持平了!联系了下同事,发现住了很多同事的小区据说淹到了车库顶。路上的下水道像个喷泉,不断涌水出来,打个电话关心我叔叔,他店里也进水了,算好没什么损失,整个湘潭都笼罩在磅礴的烟雨中……
所有的干部全部下到村、社区、堤上,雨是那么的惊心动魄!稻田里一片汪洋,村上很多骨干塘都垮塌了,地势低的地段积水很深,泥石流、山洪暴发的隐患,一切的一切都让人担心!本以为湘潭受灾很严重,晚上看新闻,看到娄底的新化、冷水江受灾更严重,真让人揪心。曾经在那求学,有一段割舍不掉的依恋情怀!很多要好的同学都是冷水江、新化、涟源一带的,希望他们家里都安好!
不得不提下我家的装修队伍了,在这样情况下,进驻我家的装修工人仍在挥洒着汗水!第一阶段的砸墙、开凿走线路沟!从他们纯朴的口音中能听出对农村中家里情况的担心!虽然暴雨对我家的装修进度是没有任何的影响,但人人都有家,何况他们家所在地—农村受灾那么严重,所以在佩服之余也很感谢他们!
PS:我家地势满高的,大雨对我家没啥事,所以MY 妈咪在暴雨中很惬意的去打麻麻去了!
再PS:要是股市能如暴雨般水涨船高就更好了!
再再PS:算好我家是5月12日开工大吉的,不然放在13号——那怎一个惨字了得!
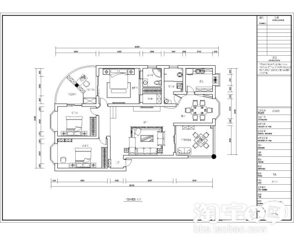
装修日记二:平面图篇
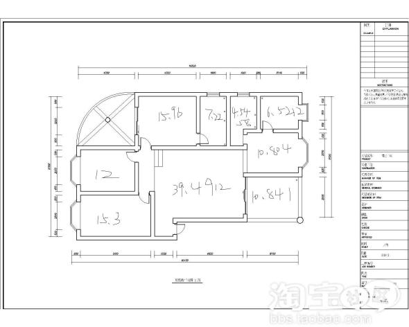
装修正式开始罗,我家总建筑面积153平,来张平面图,不好意思上面的数字是我算的平方面积,打算买仿实木地板来
接下来就是设计图了左上和右下两个阳台都做了不小的改动
1.左上的阳台中间有根很讨厌的承重柱子。虽然图纸上显示只有个原点,但实际有家里洗脸盆大小,不喜欢又不能打掉,介于我和老公很爱上网就干脆沿着柱子做书柜掩盖住,放电脑,以后上网从主卧蹭蹭几步就可以做到电脑旁了,不然这么大个阳台都拿来晒衣服什么的太可惜了!一分为二,一部分晒衣服,一部分玩网游!
2.右下角的阳台没啥用处,晒衣服把,那里的朝向是看不到什么阳光的,而且阳台紧邻着本栋楼梯通道,很怕小偷爬上来,算好和物业沟通后能砌上一截墙。聊胜于无吧,防君子不防小人撒!实在没办法,打算做个娱乐室算了,弄个自动麻将机什么的,但空间也不小撒,于是谨遵我老妈的建议,家里的柜子要多多,把原来的推拉门拆掉不要也砌一道墙,墙的尺寸和柜子的深度一样,沿着做一排的柜子哦!
3.内卫也很大,分割开来,一边做整体衣柜,一边做内卫,不过注意了下风水,厕所门没有对着床头开!
4.感谢我的妹妹,感谢可爱的赵总,井川装修公司的设计很令人满意,态度好的不得了哦(我家的设计至少是出了五道稿子,一次一次又一次的修改,完善)。一方面价格适中,另外一方面,自己的家人做事总归放心,我是半包,板材和油漆都是包给他们做,终归是自己人做事,油漆和板材中不会偷工减料,偷梁换柱什么的!
装修日记三:砸墙打洞砌墙篇
啦啦啦啦,开工啦,心情很愉悦,水电材料是自购的,从我帅叔叔那拿货,省了我一大笔银子啊!恩,以后洁具什么的继续去我叔叔店里淘,将省钱进行到底!如果不是电工师父三番两次的告诉我缺了这个缺了那个的话我会更愉悦的!害的我沙子岭建设路口两头跑啊跑的!我就纳闷了,预算都是电工造的,怎么还丢三落四的呢,刚开单子的时候水管和厕所马桶处的下水管都忘记开了!虽然这方面有点小瑕疵,不过电工王师父还是很负责的,叔叔那里给我拿的都是好的,较贵的材料,但电工师父说阀门不用那么好的,以后万一坏了不好更换,便宜点的比较好更换!OK,换便宜的!电工师父说管子什么的有剩余,OK,又可以退点货了,小省一笔!所以说还是自家人的队伍好,施工的时候都没浪费材料,懂得节约,为雇主着想!
小小胡师父是泥工,那苗条的身板,让我羡慕不已,难道泥工身材都是这样的??我甚至想是不是跟小胡师父帮两天工,说不定也能瘦个三五斤的,美滋滋啊!小小胡师父真的耐得住寂寞,一个人在那里默默的砌墙,和水泥,绝大部分时间都是他一个人在做工,都不带偷懒的,早上7点多久来了,晚上7点多才走,别看他年轻,做事有板有眼,虽说我不懂砌墙,找平地板什么的,但从他身上看出了认真的态度。而且也耐心的回答我的疑问,就一些我忽视的细节地方会提醒我,给我点建议,进行沟通!例如,我家卫生间砌墙,小小胡和他哥哥大大胡就告诉我要把地板挖开砌墙,不能直接在卫生间地板上砌墙,那样,以后很可能墙会下沉,把地板上的瓷片都弄坏!(忘了说,大大胡是包头)
上点照片啦,
这是我家进门的鞋柜,打了个超级大的鞋柜,左下脚白色的部分是原来房子预留的鞋柜面积,砸墙的部分是打算扩大的,瞧瞧,大吧,有四个原鞋柜那么大,这主要是吸取原来家里鞋柜小的问题,好多鞋子都要收到柜子里去,拿进拿出的很麻烦的!这样估计能放下两季的鞋子了!鞋柜门我是打算做百叶窗的哦,想象中超级好看!
从玄关处看客厅一路望过去就是餐厅和阳台改的娱乐室了,虽然是毛坯,也被砸的乱七八糟的,但自我感觉良好啊!右手边是卸下来不要的阳台推拉门了,娱乐室左墙那靠着推拉门的框架,大大胡据说要,总比做废品收购的好是吧,毕竟从来没用过就丢掉过于可惜了!
各位看到娱乐室砌墙了吗?左手边沿着砌的墙会做一线的柜子哦,右手边就是传说中防君子不防小人的“防偷墙”!客厅左手边立着很多小小胡做的水泥板,是用来封住娱乐室那一排的立柱的,做成墙的效果,上面装窗户,这样总比下面封磨砂玻璃,上面封窗户的好!不要问我为什么,一方面是结实不会踢坏,另一方面是我跑了1到4楼(全是封玻璃的),确实下面封玻璃不好看啊不好看!最重要的是比封玻璃省钱撒!
瞧见没,这些柱子的部分以后都会变成墙的部分啦!
背光阳台,要知道,我是多么想做成晒衣服的啊,然后我就可以把主卧的阳台全部霸占,梦想总是美好的,现实总是残酷的,为毛这个阳台就背光了,只要做娱乐室了,堆沙子的地方会做个地插,万一我家买了自动麻将机就有用处了
餐厅以及厨房原门(左一)和厨房未来的门(左二),原来的本来打算封死,后来一想,可以做成酒柜撒,省去砌墙的功夫了,又有地方可以放东西,本着MY妈妈要多做柜子的原则(餐厅只能摆下桌椅,比较小),原门改酒柜了!
从餐厅看玄关,感觉不是一般的良好啊良好!
玄关看主卧,看到两级的楼梯了吗,是砸了重新做的,不然原来的楼梯一级高来一级低的,看不得!
看看左手墙面的东西,是小小胡写给我的哦!各个房间的瓷砖面积!字比我写的潇洒!我都没提,他就主动全部算出来了!好同志啊!
长辈房,梦想中的大飘窗啊,可惜主卧里没有,不然多好啊,长辈房打了个到阳台的门,因为从结构图可以看出,我家是主卧进阳台的,我和老公住的话没什么,以后和妈妈、爸爸或者婆婆住的话,貌似不太方便,所以阳台一分为二,一边晒衣服,一边做书房,从长辈房进晒衣服的阳台是最佳选择了!还是赵总设计师有点子,我想破了脑袋都没想出来这样做!
从未来的书房,现在阳台看主卧,瞧见两张门没有,一张是更衣间的门,一张是厕所门,据设计师说要做个整体的看不出是门的门,(这样解决了风水问题)上面要有雕花什么的,说的我云里雾里,找不着北,总之,据说粉漂亮的!不过看看装修预算,也是超级耗银子的!要不要这样做了,看看赵总给的别人家的照片再说,我还没想好啊!
书房阳台啊,瞧,讨厌的大圆柱在墙里,把书柜一作就看不到了!
超级大圆柱,这里书房的面积照片上看着小,其实空间挺大的!
这是个拐角,用来作个放被子的大柜子的,瞧见右边若隐若现的讨厌大圆柱了吗。呵呵,阳台空间很大的哦!
总结,没想到才刚施工就有这么多的废话要说,这么多到处砸的乱七八糟的照片想上传,当宝贝一样罗里啰嗦一大堆!装修自己的房有种幸福感!才刚开始,也不觉得有别人说的那么累!不觉得有别人说的那么多因为装修意见不同而和老公闹矛盾的想法,不知道以后怎么样!对未来的装修结果拭目以待!
5月20日更新:水电清单 总成本:2220元,叔叔店里拿的,因为材料都是最好的例如日丰什么的管子,而且都是成本价格给我的,嘻嘻,具体就不列清楚了,有需要的可以单独问。
同时给个小窍门,网线和电话线不用同时购买,直接用网线就可以了,电工师父说网线里面有8根线头,其中4根用于接网线,4根备用的,这样从备用的里面接两根就起到了电话线的效果了。如果你家需要装电话或者宽带,先和电信联系会提供你所需的线材的,呵呵,前提是你先预交宽带或者电话费。
装修日记四:地面找平篇(5.28更新)找平漏水小差曲二部曲
转眼装修就过了两个星期了,小小胡师父(泥工)的辛勤努力终于有了点点成效,要铺设仿实木地板的房间都找平了。虽然中间发生了小差曲,但总体的效果还是好的!
差曲一:上面找平,下面下雨!
小小胡师父是个认真负责的人,早上8点到晚上8点一直坚守在装修现场,能今天做的事情绝对不明天做完!————当需要找平的那天来临时,通过电话通知了我们,下午两点开工,因为有些事情耽搁,我和老公估计会要3点才能到,所以就要小小胡师父直接通知下面的住户,并说等我们来了再去一次,(因为不漏是不可能的,所以必须和下面邻居协调好)。等老公赶过去时,小小胡师父已经惹火朝天的开工了,可一问,糟糕,下面的住户不在家,根本就没通知到人家,老公说为什么不慢点等联系上了再开工啊,小小胡说那时间就来不及了,会要弄到晚上12点去。老公立马通过物业联系上了下面的邻居,唉!!可怜的楼下,变成了水帘洞……主卧的床上东西都湿透了……
差曲二:大大胡在下面发呆,小小胡在上面发呆
事情出了,总要有解决的办法吧。于是大大胡(木工)作为小小胡(泥工)的兄长,去楼下协商赔偿问题,顺道道歉!态度诚恳!说实话,我和老公也挺不是滋味的!(将心比心)
楼下住户要求全部换新的,席梦思、羊毛被,鸭绒被,毯子,土棉花垫……99%被渗漏湿了的东西都需要更换新的(说是脏水弄湿的且无法干洗),都是挺值钱的东西,琢磨着几千大洋肯定是跑步掉的了,大大胡被惊呆了,蹲在楼下邻居家发呆,小小胡同志也懵了,蹲在正装修的房里发呆。
虽说我和老公也反复强调过找平一定要通知楼下。出现问题也由装修公司解决,但装修公司承担损失是一定会分摊到泥工师父的头上,泥工师傅赚钱本是重体力活,辛苦钱,真的很不容易!内心不免有点点埋怨楼下的,当然楼下是受损失的,这样埋怨的确是我的不对!(埋怨内容如下:这么热的天气,羊毛被,鸭绒被肯定是盖不上的,怎么都堆在床上不收起来呢!赔偿也不需要全部都更换新的吧!)
最终的应该是圆满解决了!不过我和老公都没有问小小胡和大大胡,怕触及他们的伤心处!但相信经过这次后,他们能吸取教训,不再出现不应该出现的失误!经济慢慢富裕起来!
上图了:找平后的客厅,干了后的水泥是蓝蓝色的,但撒上水再干后就变成正常的灰白色的了,为什么呢我也很好奇啊!
蓝蓝的地板,怪怪的!
封墙的水泥板,要封到栏杆上的!
找平后的娱乐室,里面站的是我的眼镜老公!看到没,砌墙的墙面都粉平了,水泥板也封了阳台了!本来老公站的那块都是栏杆!
找平后的餐厅,右边的门过梁加固了!
找平的儿童房
找平的长辈房
找平的主卧,可以看到蓝蓝色的水泥和干了的灰白色的水泥地面(楼下漏水的重灾区发生地)
晒衣服的阳台
主卧书房,墙面都粉平了,讨厌的大柱子还在
支持一下,装修可是件累人的事哦,期待你的成功作品,呵呵 [最后更新时间为 2010-05-19 12:32]
先顶贴,慢慢看,装修是件苦差事,别忘了继续上图啊
装修日记五 瓷片篇 5月28更新
买了瓷片罗!长安的!小小胡师父说质量还满不错的!是俺叔叔带着我去买的,地点是沙子岭,不是建材市场哦,据说是专门批发的市场,门店后有三个好大巴大的仓库!长安的和欧美的瓷片我跑了好多趟,通过价格比较,最终还是选择了长安,(毛办法,欧美的找了熟人给了个最优惠的价格还是比长安贵好多啊!)
做生意的老板都不是省油的灯啊,第二次去批发的那里,虽说老板是说按批发价给,但长安的伙计给了个批发+零售的混搭价(他老板华丽丽的说的)!通过俺叔叔的努力,据说是批发价拿到手了,(虽说我仍保持怀疑态度,但心想总要比门店里便宜一点点就行了),总共120平的瓷砖共计6100元!
瓷砖是直接送货的,开头我还不想要搬运工,总觉得减肥的机会啊……又来了!但老公说我不靠谱,于是送货的当天又预定了搬运工,120元!真是体力活啊,一个搬运工师父搬了大约三个小时才搬完!那个汗是个淌啊淌的!估计能接一小脸盆(辛苦!辛苦!端茶,递烟,递槟榔)!看看瓷片堆积了一餐厅,发觉自己真是异想天开啊,搬到装修结束我都搬不完啊!
内卫墙面淡黄色
美丽的腰线
内卫地砖淡黄色
外卫瓷片白中有点乱七八糟的花线
外卫厨房地砖
外卫,厨房花片细节图,花朵里有一小片片的闪光,可惜相机照不出效果!
娱乐室瓷片,据说是看上去像地毯一样的瓷片,仿古的
阳台,书房抛金砖,小小胡说舖出来会很花俏的,嘿嘿!
7月5日铺贴效果上传更新

外卫进门的地方,看到左右的门框了吗,不好包边,所以网购买了紫色的小颗粒马赛克,打算贴上!

外卫,刷了防水涂料,现在试水有两天了!
隐隐约约看的到墙上的花片

厨房,本来灶是要放在靠窗户的地方的,顾及到风水说,所以看右边的黄色的管子,就是煤气管道了,什么合金的吧,不是塑料管哦,灶就放在那个位置了
本来这里放灶的,呵呵,上面左边黄色的瓷片是用来打橱柜的!

内卫瓷片,有腰线,看到没

娱乐室的瓷片,左边没有贴瓷片,是泥工师傅提出来的,说反正要做柜子,贴瓷片也看不到,正好可以省几块瓷片,哦也,又小省一笔!

晾衣服的阳台瓷片,

书房阳台的瓷片
[最后更新时间为 2010-07-05 13:20]
现在看起来还没有样子,相信不久的将来,会出来一个温馨的家支持楼主,以后装修了也要像楼主学习装修日记六:网购保险柜篇
没啥好说的了,去沙子岭看了,能放下产权证的品牌保险柜460元,(估计装修完后我除了产权证也没什么东西放了),网上淘到的,390元包邮,而且物流公司就在我家门口,方便,立马订购了,但是卖家把我的电话写错了,负责的联系了我,告诉我取货的地方!华宇物流也很不错,很重的东西,看我胖归胖,但力气不大,于是帮我搬运上了我的电跑跑!
柜体是正方形的,不是很厚,适合于镶嵌到墙里面,呵呵!

装修日记之七:
网购瓷砖、马赛克篇(6.22)上传效果


这张是闪光灯的效果,打上灯光看上去实物比照片更金光闪闪啊!

网购的马赛克,长方形的,准备贴飘窗的,也是有点破损,老板退了我22元,呵呵,很实惠啊,红旗商贸城的好贵的,这个淘宝的老板超级好!交流了好久才买的!

破碎了几片,老板非常好的退了点款给我
这张估计是拍的最接近本色的了,照相机照的难免有点色差
这个是贴外卫门框的,因为外卫是做的干湿分区,所以没有门的,瓷片无法给门框包边,只能用马赛克了,300*300的,红旗商贸城看到一摸一样的,开价要58,还价也要30多一片,我的是8.8元一片买的

[最后更新时间为 2010-07-05 13:36]
我的天,关注中……汗一个,我刚看了下别的参赛作品,呵呵,怎么都是装修的差不多了的,我还以为要装修一开始就要报名参加呢,看样子,我的装修日记是个流水账式的日记了,重在参与(说出来我都不信,呵呵),我会坚持记录下装修的点点滴滴的!今天封阳台的,和装纯净过滤水系统的师傅都会来,封阳台时还出现了小插曲,明天的更新中我会告诉大家的!自己的家秀出来了就总希望能得到大家更多的关注!
以上是之前写的,现在拿来用这一楼进行更新了
7.5日更新装修日记之八:柜体篇
胡家装修班的功底真不错,我的超级大鞋柜百叶门美呆了!泥工小胡师傅,包头兼木工大胡师傅,以及木工胡师傅手艺都超级好!赞一个!我家都是用的EO级的三层杉木单面无节的板子,所以比大型板要贵好多,其实有时看到别的家4,5万就装修出来,很是羡慕,一问才知道,油漆、板材等主料便宜的和贵的相差几倍之遥,但是家里有小孩非常重要,所以环保的杉木板自我感觉胜过环保的大型板,价格就要贵很多了,估摸着装下来需要借贷了,没10W装不出环保点的房间啊

超级大鞋柜,基本上占了一面墙的大小,下面是打开挡板是斜的用来放鞋子,上面的挡板是直的,用来放鞋盒子,因为都用来放鞋子的话上面太高不是很方便,放鞋盒子起个收纳作用很不错的


做工真的没得说,我死党还问我这个是买的还是做的柜门啊!哇咔咔!

长辈房柜子,我和楼上正在装修的木工手艺对比了一下,真是好很多,接口的地方都很平,并且没有缝隙!楼上装修的师傅做工当然就是接口不平整,并且有缝隙的那种了!呵呵,柜子上放的是我的小颗粒紫色马赛克盒子!
儿童房柜子,和长辈房不同的就只有右边部分了,有人发觉了没有哦!(请忽视地上的鞋子,这是泥工师傅做工时换下来的,小小胡师傅很注意形象的,开工的时候和手工后身上的穿着都是不同的!)
主卧的步入式衣柜,呵呵!右边柜体里有个突出,是包管道的,本来这个地方空间有限,不能做成这样,还是木工师傅想了办法才达到我要求的效果!记得那天和木工师傅交流,我说我的想法,然后木工师傅说“不行,没办法”我说“想办法”木工师傅说“不行,没办法”,“想办法”“不行,没办法””,“想办法”“不行,没办法””,“想办法”“不行,没办法””,“想办法”“不行,没办法”
…………纠结了好久啊,终于木工师傅妥协了!…………
照片拍的不是很好,因为空间有限,所以拍的有点变形了,实物非常漂亮

书房阳台上的大柜子,放棉被的首选啊!
大胡师傅做工很精到,看到上面贴的水柳木面板没有,纹路都是一个方向的,从上到下的纹路非常的协调,当然这也适用于我家的门上,一样很协调,我家只有两个地方的柜门和房门是用的大型板材,其他的衣柜都是用的杉木板,我的银子啊………………
门的细节图!
门的细节图!
7.5日更新装修日记之九:仔仔篇

每回带我宝宝去装修现场,刚进小区门,宝宝就指着说“这里是茜茜的新房子,好大滴!茜茜滴!”反复强调,生怕我不知道!房子的瓷砖贴的差不多了,又带着我宝宝去逛了趟,顺道给她一元钱坐摇摇,也许是坐摇摇给了她金钱的概念,结果进小区门的时候宝宝指着说“这是茜茜的新房子,三块钱买的,是妈妈买给茜茜的!”回家后,对房子也是兴致不减,认认真真的在搭积木房子!
[最后更新时间为 2010-07-05 13:50]
期待更新哟.精华鼓励 .
PS:
活动是需要 这样的装修过程的.
楼主,快快更新哦
哈哈,想看到成果图了。
学习学习,借签借签,嘿嘿
热情关注中。
亲们,到我家来看看夏装吧,za女装,两件包邮!
持续关注.辛苦了,期待更新噢!!楼主湘潭的吗?哈哈,我也是湘潭的哦,老乡哈,终于找到了一个哈,装修顺利哈期待更多的图片哈
评论内容:发表评论不能请不要超过250字;发表评论请自觉遵守互联网相关政策法规。