
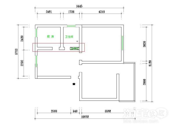
这是平面图。麻烦哪位大师,帮我设计一下简洁大方,又能感觉空间大些的方案吧~最主要的是餐厅兼客厅,最好把厨房门和卫生间门那块做成隐型的背景墙。。。拜托各位大师啦~
[最后更新时间为 2010-07-02 09:25]
本帖的助威记录:助威总计 0 点 | 查看全部记录>>楼主 囡囡怡88 说:
这是平面图。麻烦哪位大师,帮我设计一下简洁大方,又能感觉空间大些的方案吧~最主要的是餐厅兼客厅,最好把厨房门和卫生间门那块做成隐型的背景墙。。。拜托各位大师啦~不知道哪个地方是承重梁?我这房是顶楼。承重墙应该就是我想做隐形墙的那块吧~我这房型比较老了。。
[最后更新时间为 2010-07-02 09:31]
评论内容:发表评论不能请不要超过250字;发表评论请自觉遵守互联网相关政策法规。