由于银子严重缺乏,买了套两室两厅的房子,建筑面积88平。目前,两个孩子(一男一女双胞胎,上小学),夫妻二人,父母时常来住。需四间卧室,不拘大小,只要满足日常生活就行。
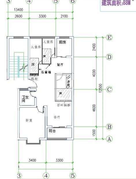
下图为户型图,再下面我自己想了一个方案,大家看看如何,给个意见。
如有更好的建议,请指教!
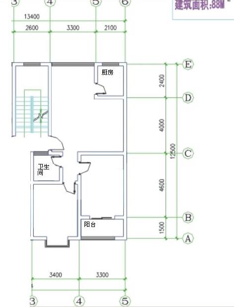
改造后:
如下图:
改造说明:
1、原有的客厅没窗户,唯一的阳台又成了单个卧室的专属,使用起来很不方便,所以将连接阳台的卧室改成客厅,这样一家人无论谁都可以大大方方地去阳台了(阳台不准备封,这样室内的阳光、空气都会很好),打掉原卧室的北墙和西面一部分墙和原来卧室门所在的位置,因为客厅是不需要门的。
改造后的客厅东西方向只有3.3米,专家不是说看电视要离3米以上吗,基本算达到了吧,电视是液晶的,不占多大地方。
2、儿童房这样隔断是不得已而为之,小了点,但大大的落地窗解决了空气、光照的问题,儿童房一定是要通风透气还要光照好的才行,否则,影响孩子们的生长发育。
儿童房准备用两层石膏板中间夹一层装修专用泡沫来进行隔断,门做成窄窄的毛玻璃小拉门。
每间儿童房都有一面是砖墙,在这面墙的上方做吊柜,可以放一些换季不用的床上用品和幼时的闲置物品。
床的北边靠墙放一张书桌,书桌准备买那种连体的,上面书架,下面书桌的那种。床的下面做成抽屉,放孩子日常衣物。
3、考虑到餐厅不需要太多的日光,把餐厅放到了厨房外面,这样吃饭方便。厨房的拉门打开时,也可以透光通气。
4、这是最最重要的一个改造!
由于还少一个可以睡觉的房间,只得把原来卧室的一面墙打掉,在餐厅和现在的客厅之间,隔断出一个小房间,可以放一张大床和一组衣柜就行了。这个房间有个特点:三面墙用料各不相同,北墙用料和儿童房一样(石膏板夹泡沫),西墙做个整面墙的大柜子,顶天立地,当然两头做成圆弧形的多层置物架。最有意思的南墙:准备用实木百叶来做,不过下面是实的,床上方40公分左右就全部是百叶了。这样设计解决了这个房间的通风透气的难题。只要几个门开着,厨房、儿童房、阳台的风都可以通过。
唯一的缺点就是:不隔音。(我也实在想不出又通风透气又隔音的好办法了。)
亲们如有更好的建议,不要吝啬噢!
帖子被加精华啦,倍受鼓舞!


一起来交流啊!有意见建议尽管提!!!
不错!!!支持!
两个Baby房嗳!
不错,喜欢
我顶!我顶!我顶顶顶!
其实想得已经很周到了挺好,很周到,自家人,没隔音,没有什么大的影响.
顶一下!
呵呵,还是不错了,客厅的面积会不会小了点?打造爱的味道
,祝福支持一下!
楼主你真牛!
牛爆了历害楼主很有才哦~~历害哈哈,好幸福哦,龙凤胎.能利用的都已利用了,不错评论内容:发表评论不能请不要超过250字;发表评论请自觉遵守互联网相关政策法规。