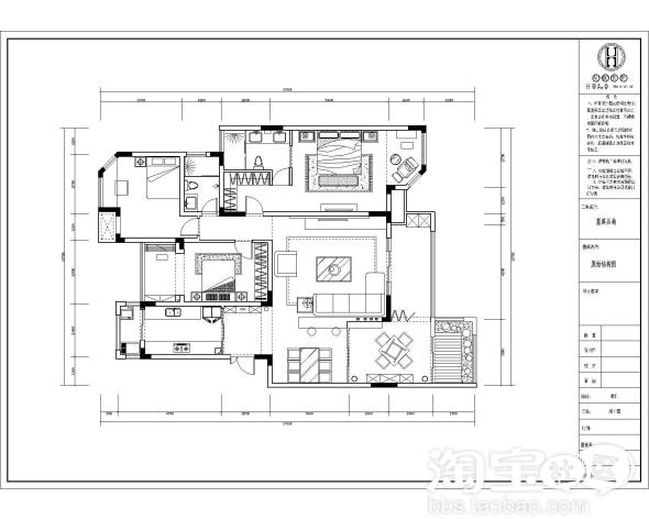
这是一个三口之家居住的房子,下面给大家看一下原始平面图:

在经过和业主沟通之后,我们设计采用了现代简约风格,下面是整
个平面布置图

在设计师精心设计之后,无论是厅房还是卧室都有合适的尺度,布
局空间齐全。

无论是沙发后的吧台或是主卧室的衣帽间或是儿童房的榻榻米都体
现了现代简约风格对功能的考究
再加上温馨明快的色调和简洁的造型及大方,个性,时尚的软装配
饰也体现了现代装修轻装修重装饰的居家装饰思潮,而且也能兼顾
济,艺术,高雅,易打理等优点,更体现出设计师以人为本的设计
理念

房子的风采也欣赏完了,下面来看看我们这位帅哥设计师的风采吧!!呵呵
张 欢 设计师
从业时间 5年
毕业院校 四川师范大学环境艺术设计专业
成功案例 重庆财富中心,奥林匹克花园, 天湖美镇,重庆同创
奥韵,龙湖好望山,重庆长青湖别墅,......
设计感悟 以人为本,植根文化艺术,创造自然,简约新空间。

[最后更新时间为 2010-06-25 13:40]
本帖的助威记录:助威总计 0 点 | 查看全部记录>>天下第一大帮发财帮 点击进入 加入帮派有礼物!























































刷钻劲爆最低价,一钻100起,专为想要好生意的卖家打造。流程绝对严密,一个月可安全到2钻。想要生意好还得信誉高,别再犹豫,商机商机商机商机,错过了就没了。联系QQ:86766572(注明刷钻) 评论内容:发表评论不能请不要超过250字;发表评论请自觉遵守互联网相关政策法规。