请各位兄弟姐妹看看,帮我出出主意,多谢了!

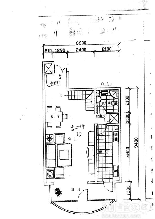
本人生活在北京,房子是07年买的了,总面积151平米,后来简单装修了一下住进去了,目前我家已经铺好木地板,楼梯我换了个方向,厨卫已经装修得比较满意了,现在想重新装修一下,有几个问题,请大家帮忙出出主意

1、房子全朝南,采光不错,可是整个房间就只有一面窗户(我已经将楼上楼下的弧形外露台包进来,做成落地窗),北面的居室面积不能保证有足够的阳光,楼下户型比较合理,可是客厅过大,大概有45平,以后可能和老人一起住,上楼不方便,可不可在楼下再隔出间卧室呢?就怕隔出卧室又不能保证采光了。

2、楼上的面积浪费较大,我想将楼上的变成两室,可是小卧室的面宽太窄,只能将墙打掉往左移。可是做成两居楼梯位置的采光也会受影响(都是只有一面窗户惹的祸啊!),请各位帮我出出主意麻将楼上的两居合理规划一下,最好给个明确的指导,小生多谢各位兄弟姐妹了!!!

本帖的助威记录:助威总计 0 点 | 查看全部记录>>

还是觉得在二楼隔出一间比较合理,楼梯光线不足不是大问题,一层客厅光线不好,就是问题了,这房子151平米户型浪费的比较多,利用空间少。要是买个平层的,能买个不错的三居室。

不建议和父母住在一起,就是二楼能隔出一间房子,楼上楼下的父母住这也不舒服。

[最后更新时间为 2010-06-01 19:11]

我也是银子有限,当时是尾房处理

最新评论

发表评论

为“请各位兄弟姐妹看看,帮我出出主意,多谢了!”说几句吧

评论内容:发表评论不能请不要超过250字;发表评论请自觉遵守互联网相关政策法规。

Copyright © 2009-2024 yr.pinnace.cn All Rights Reserved. 17育儿网 版权所有

粤ICP备11040004号-1